XT自清洗過濾器
X系列全自動自清洗過濾器是一種電動吸吮式過濾器,通過一臺電力馬達驅動清洗機構,對于不同的使用場合可配備20微米-500微米的濾網,2”-24”的口徑。X系列過濾器有三種結構型式:XT立式、XM臥式。
型號說明
例 X T M G D-200/10
X代表吸吮式清洗,T代表立式安裝,M代表立式安裝,
G代表高壓輔助沖洗泵,D代表大流量,200進出口徑,
10代表公稱壓力。
過濾過程
臟水從過濾器進水口進入,然后從濾網內向外通過細濾網,此時比網孔粗的雜質被攔截下來并積累在濾網的內表面形成濾餅,這些濾餅同時能夠捕捉水中的一些更細小的雜質。
污水在排污時通過排污口排出,壓差開關持續檢測濾網內外的壓差,當達到預設值時將傳遞一個開關信號到控制箱啟動一次清洗循環。
自清洗過程
過濾器的清洗機構是一個不銹鋼304材質,旋轉及上下運動的吸吮掃描器,它是空心結構,在吸污器上均勻分布著若干個吸吮口,吸吮掃描器內部與一個3”電動排污閥相通,在電動排污閥打開時,過濾器內部水壓與外部大氣之間形成的壓差使每個吸嘴產生強勁吸力,在每個吸吮口,水流從濾網外向內反向高速流出將雜質沖下來進入掃描器并通過排污閥排出,吸吮口處的高速反向水流足以將濾網上的頑固雜質吸走。吸吮掃描器由一個連有絲桿裝置的雙向電力馬達驅動,按照固定的轉速作螺旋往復式的運動,這樣多個吸嘴就能吸遍整個濾網內表面,這個過程大約需要30-120秒鐘。在整個反清洗過程中,系統不斷流。
控制系統
采用工業單片PLC自動控制,中文或英文。可根據壓差或定時控制過濾器自動清洗,并可手動、強制清洗。現場可設定過濾時間、清洗時間。運行信號、清洗信號、故障信號輸出及485通訊接口。
電動吸吮式自動清洗過濾器
過濾器殼體:碳鋼噴環氧樹脂、不銹鋼、雙相鋼
濾網:不銹鋼、雙向鋼
清洗裝置:不銹鋼、雙相鋼
排污閥:鑄鐵
密封圈:丁晴橡、膠硅橡膠、
控制箱: PVC
應用范圍
1、冷卻水處理——冷卻塔、補充水系統、空調系統、直流系統水過濾,減少熱交換器內沉淀物的產生,保持其冷卻效果。
2、原水處理——可對地表河水、湖水、海水、水庫水、井水及地下水進行過濾,除去沙子、細菌、藻類、有機物等等。
3、工業循環用水過濾——在對水質有一定要求的設備如:冷卻塔、軋機、連鑄機、拋光、水泵、電磁閥、離子交換器、噴霧器、熱交換器等或供排水管路上使用,可過濾掉水中雜質,避免管路、噴嘴等零部件堵塞。
4、灌溉——尤其適用于高流量、雜質含量高的水源,農業灌溉、噴灌,公園、高爾夫球場、草皮澆灌等。
5、造紙工業——白水過濾。
6、塑料工業——注塑冷卻循環水過濾。注塑機
7、膜預處理,樹脂預處理,超濾預處理。
8、海水淡化預處理過濾,海水養殖過濾
XT自清洗過濾器 安裝方式:立式安裝
單臺流量:150-1800m3/h,更大流量可由多個單機并聯。
公稱壓力:1.0MPa、1.6MPa
工作壓力:0.20~1.2MPa
最高工作溫度:60℃
過濾精度:50-800微米。
控制方式:壓差、時間及手動
清洗時間:35-120秒。
清洗機構轉速:14-20rpm
清洗方式:掃描吸吮式清洗。
清洗壓損:0.01-0.08MPa
工作電壓:AC 380V,50HZ,三相四線
控制電壓:AC220V ,50HZ
液晶顯示界面,人性化設計操作簡便
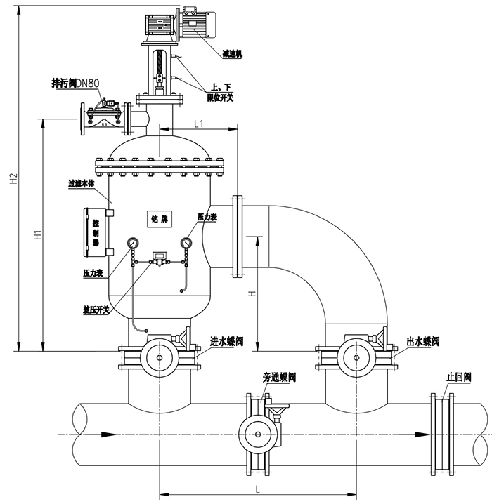
XT技術參數
型號 XT-150 XT-200 XT-250 XT-300 XT-350 XT-400 XT-500 管徑 (mm) 150 200 250 300 350 400 500 最大流量 (m3/h) 150 300 400 600 900 1200 1800 過濾面積 (cm2) 6500 6500 11500 12500 13500 16500 16500 電動排污閥 DN (mm) 50 50 80 80 80 80 80 一次清洗水量 (L) 150 150 400 400 400 450 450 電機功率 (kW) 0.55 0.55 0.55 0.55 0.55 0.55 0.55 重量約 (kg) 500 500 620 655 720 910 980
表中流量精度為200um.其他技術參數請咨詢本公司,
型號 XT-150 XT-200 XT-250 XT-300 XT-350 XT-400 XT-500 H 580 600 720 720 700 800 800 H1 1100 1120 1413 1413 1417 1525 1525 H2 1720 1750 2080 2080 2110 16500 2200 L 880 900 1000 1000 1200 1500 1600 L1 350 350 415 415 475 565 565